| TOPに戻る

  • お気に入り

  • 0564-66-1153

    電話

  • LINEコール

    LINEコール

  • 10~18:00
  • 土曜日・日曜日・祝日

バス通り沿いのオシャレなビルです!人気の1階物件!ロードサイド!独立開業向け物件です!駐車場2台あり! | 物件情報 | 岡崎市のディプラス

店舗・事務所|バス通り沿いのオシャレなビルです!人気の1階物件!ロードサイド!独立開業向け物件です!駐車場2台あり!

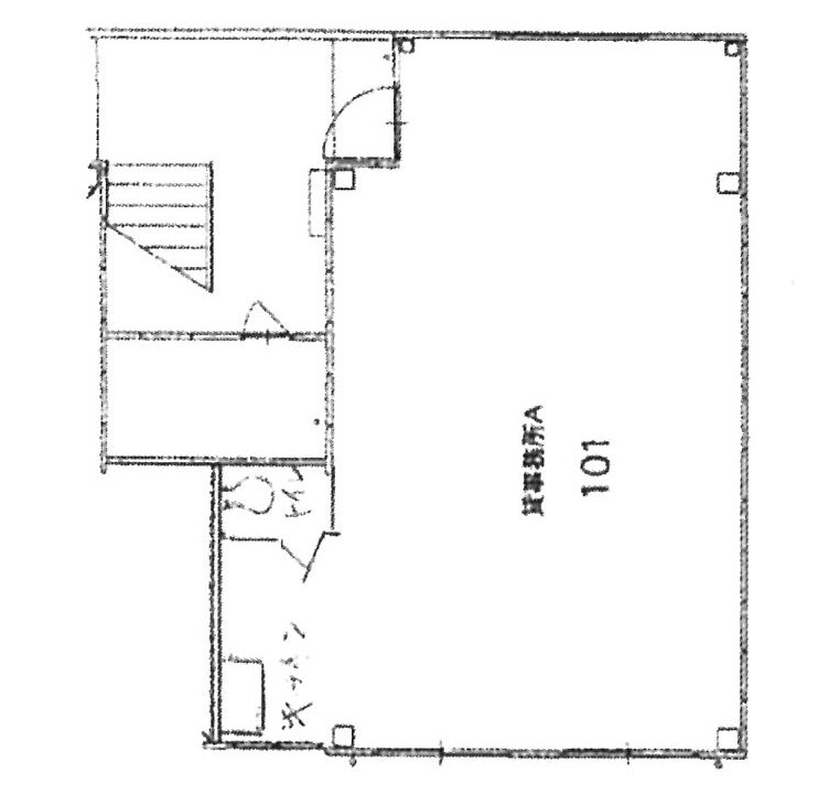
物件No 2028-101   K

物件No 2028-101   K

フォワードビル

  • 賃料

    148,500 円(税込)

  • 面積
    13.89坪/45.92㎡
  • 所在地
    岡崎市伊賀町字2丁目
    (地図を見る)
  • 交通
    名鉄名古屋本線 東岡崎駅 【バス乗車】7分 名鉄バス『石神橋』停徒歩2分 愛知環状鉄道『北岡崎』駅 徒歩約16分
  • おすすめ用途♪
    店舗などにおすすめ!
  • おすすめポイント♪
    ロードサイド!独立開業向け物件です!駐車場2台あり!

建物情報

建物情報 店舗・貸事務所 築年月 2006年9月
建物構造/階建 鉄骨造 / 3階建

RC=鉄筋コンクリート SRC=鉄骨鉄筋コンクリート

部屋情報

号室/所在階 101号室/1階 その他
共益費 3,300円 現況 在室
保証金 3ヶ月 引渡し 2026年3月下旬以降
礼金 1ヶ月 契約更新 2年
保証金償却 2ヶ月 賃貸保証 要加入 総賃料約1か月分
駐車場 2台込
設備

プロパンガス、トイレ、ミニキッチン

特記

※写真は現入居者の入居前のものです。現状有姿(エステ店)での引渡し
保証金償却:退去時2ヵ月分
町費:年10,200円(毎年4月頃年払い)
借家人賠償付火災保険要加入

Googleマップ

お問い合わせ

お急ぎの方は、お電話やLINEでどうぞ

クイックお問い合わせフォーム

*は必須入力です。

物件No.
物件名
お問い合わせ内容*




お問い合わせ理由*


この物件に対する
ご質問・ご相談など
会社名
お名前・ご担当者様*

ご希望の連絡先

  メールアドレス

メールアドレス

  電話番号*

電話番号*

  FAX

FAX

ご希望の連絡時間
その他の連絡方法

物件リクエストをご希望の方は、こちらへ

ご希望の物件


ご希望の地域
ご希望の広さ
坪 ~ 
駐車場  台
ご業種
ご予算
万円 ~
ご希望の時期
 までに
その他ご希望など
ご住所

〒   都道府県 

市区町村番地
マンション・ビル名・
号室

本入力フォームおよび、メールでご連絡頂きました、お客様の個人情報に付きましては、厳重に管理を行なっております。
法令等に基づき正規の手続きによって司法捜査機関による開示要求 が行われた場合以外を除き、第三者に開示もしくは、 提供することはございません。