| TOPに戻る

  • お気に入り

  • 0564-66-1153

    電話

  • LINEコール

    LINEコール

  • 10~18:00
  • 土曜日・日曜日・祝日

六名駅徒歩4分の好アクセス!3階建て1棟貸しです!駐車場も15台込みで、通勤・来客用駐車場も十分確保できます!! | 物件情報 | 岡崎市のディプラス

店舗・事務所|六名駅徒歩4分の好アクセス!3階建て1棟貸しです!駐車場も15台込みで、通勤・来客用駐車場も十分確保できます!!

物件No 1398   

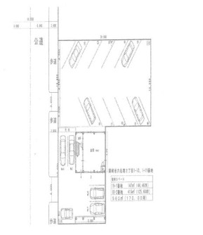
平面図

物件No 1398   

六名事務所

  • 賃料

    400,000 円(税込)

  • 面積
    71.14坪/235.19㎡
  • 所在地
    岡崎市六名南2丁目
    (地図を見る)
  • 交通
    愛知環状線 六名駅 徒歩4分
  • おすすめ用途♪
    店舗・事務所など
  • おすすめポイント♪
    六名駅徒歩4分の好アクセス!3階建て1棟貸しです!駐車場も15台込み!

建物情報

建物情報 貸店舗事務所 築年月 1979年8月
建物構造/階建 1階鉄骨造 2階3階木造 / 3階建

RC=鉄筋コンクリート SRC=鉄骨鉄筋コンクリート

部屋情報

号室/所在階 /1~3階 その他
共益費 --- 現況 空室
保証金 3ヶ月 引渡し 即時
礼金 1ヶ月 契約更新 2年
保証金償却 --- 賃貸保証 要加入 初回保証料 月額総賃料1ヶ月分
駐車場 無料15台
設備

キッチン 給湯器交換予定 
看板取付スペースあり

特記

定額水道料(約):10,000円/月
飲食店不可
2階エアコンは設備外 3階エアコン故障中

Googleマップ

お問い合わせ

お急ぎの方は、お電話やLINEでどうぞ

クイックお問い合わせフォーム

*は必須入力です。

物件No.
物件名
お問い合わせ内容*




お問い合わせ理由*


この物件に対する
ご質問・ご相談など
会社名
お名前・ご担当者様*

ご希望の連絡先

  メールアドレス

メールアドレス

  電話番号*

電話番号*

  FAX

FAX

ご希望の連絡時間
その他の連絡方法

物件リクエストをご希望の方は、こちらへ

ご希望の物件


ご希望の地域
ご希望の広さ
坪 ~ 
駐車場  台
ご業種
ご予算
万円 ~
ご希望の時期
 までに
その他ご希望など
ご住所

〒   都道府県 

市区町村番地
マンション・ビル名・
号室

本入力フォームおよび、メールでご連絡頂きました、お客様の個人情報に付きましては、厳重に管理を行なっております。
法令等に基づき正規の手続きによって司法捜査機関による開示要求 が行われた場合以外を除き、第三者に開示もしくは、 提供することはございません。