| TOPに戻る

  • お気に入り

  • 0564-66-1153

    電話

  • LINEコール

    LINEコール

  • 10~18:00
  • 土曜日・日曜日・祝日

閑静な住宅街にあり、近隣に大きな通りがあるので通勤や移動がしやすいです!屋根裏に収納スペースあります!事務所にオススメです! | 物件情報 | 岡崎市のディプラス

店舗・事務所|閑静な住宅街にあり、近隣に大きな通りがあるので通勤や移動がしやすいです!屋根裏に収納スペースあります!事務所にオススメです!

物件No 1222-2   DP

物件No 1222-2   DP

鴨田本町貸事務所

  • 賃料

    72,600 円(税込)

  • 面積
    10.09坪/33.36㎡
  • 所在地
    岡崎市鴨田本町
    (地図を見る)
  • 交通
    愛知環状鉄道 大門駅 徒歩23分 愛知環状鉄道 北岡崎駅 徒歩28分
  • おすすめ用途♪
    事務所にオススメです!
  • おすすめポイント♪
    近隣に大きな通りがあるので通勤や移動がしやすいです!屋根裏に収納スペースあります!

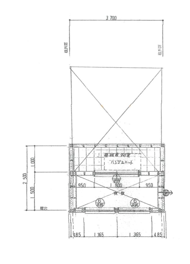
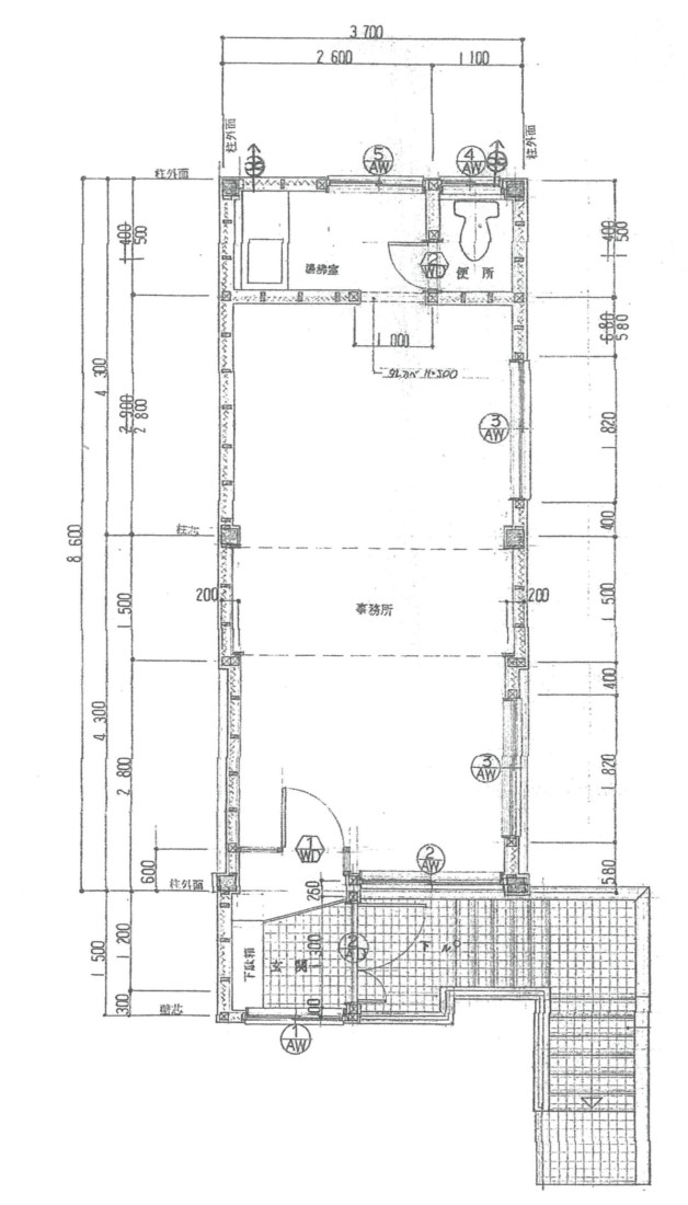
建物情報

建物情報 店舗・事務所 築年月 1986年4月
建物構造/階建 鉄骨造 / 2階建

RC=鉄筋コンクリート SRC=鉄骨鉄筋コンクリート

部屋情報

号室/所在階 /2階 その他
共益費 --- 現況 在室
保証金 3ヶ月 引渡し 2026年1月下旬予定
礼金 1ヶ月 契約更新 2年
保証金償却 --- 賃貸保証 要加入 総賃料約1ヶ月分
駐車場 なし近隣駐車場契約要
設備

キッチン
トイレ

特記

借家人賠償付火災保険要加入
※写真は現入居者入居前のものです
飲食店不可

360°パノラマ

Googleマップ

お問い合わせ

お急ぎの方は、お電話やLINEでどうぞ

クイックお問い合わせフォーム

*は必須入力です。

物件No.
物件名
お問い合わせ内容*




お問い合わせ理由*


この物件に対する
ご質問・ご相談など
会社名
お名前・ご担当者様*

ご希望の連絡先

  メールアドレス

メールアドレス

  電話番号*

電話番号*

  FAX

FAX

ご希望の連絡時間
その他の連絡方法

物件リクエストをご希望の方は、こちらへ

ご希望の物件


ご希望の地域
ご希望の広さ
坪 ~ 
駐車場  台
ご業種
ご予算
万円 ~
ご希望の時期
 までに
その他ご希望など
ご住所

〒   都道府県 

市区町村番地
マンション・ビル名・
号室

本入力フォームおよび、メールでご連絡頂きました、お客様の個人情報に付きましては、厳重に管理を行なっております。
法令等に基づき正規の手続きによって司法捜査機関による開示要求 が行われた場合以外を除き、第三者に開示もしくは、 提供することはございません。